Se tem uma casa brasileira que conquistou o mundo da arquitetura em 2026, é a “Casa de Mainha”. O projeto, assinado pelo arquiteto Zé Vagner, foi eleito “Obra do Ano” na categoria Casas do ArchDaily Building of the Year Awards, uma das premiações mais prestigiadas da arquitetura contemporânea.
Continua depois da publicidade
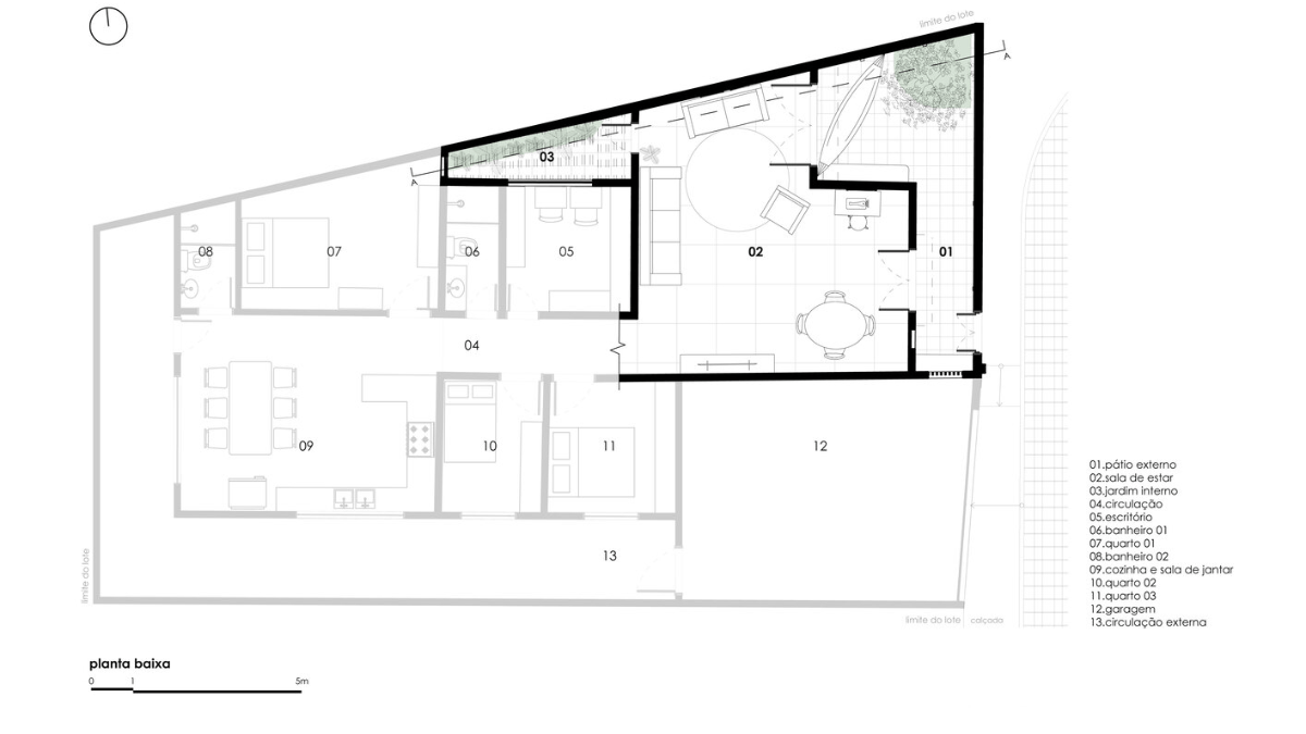
A casa fica localizada em Feira Nova, no interior de Pernambuco, e foi construída pelo pai de Zé Vagner em 1980. “Ao longo dos anos, refletindo uma prática comum entre populações de baixa renda, o edifício passou por diversas reformas para se adaptar às novas dinâmicas familiares. Essas sucessivas ‘ampliações’, que visavam solucionar alguns problemas imediatos, resultaram em uma massa construída densa e pouco funcional, marcada pela falta de ventilação e iluminação adequadas”, destaca o prêmio.
O reconhecimento internacional colocou o projeto no radar global, destacando a força da arquitetura brasileira autoral, sensível e conectada às raízes afetivas. A Casa de Mainha se sobressaiu entre centenas de obras do mundo todo, escolhida pelo voto do público e por critérios técnicos da plataforma.
A Casa de Mainha foi pensada como um espaço de memória e pertencimento. O projeto valoriza a ventilação cruzada, a iluminação natural e a integração entre interior e exterior, criando ambientes fluidos e acolhedores.
Continua depois da publicidade
O uso de materiais naturais e soluções arquitetônicas adaptadas ao clima reforça a identidade brasileira da obra. A proposta alia simplicidade estética e sofisticação técnica, sem abrir mão do conforto e da funcionalidade.
A premiação do ArchDaily é considerada um termômetro das principais tendências da arquitetura mundial.













